|
|
|
||||||||||||||||||
付かず離れず、海岸スタイル |
||||||||||||||||||||
|
||||||||||||||||||||
|
||||||||||||||||||||
|
||||||||||||||||||||
|
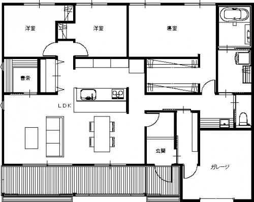
佇まいは「海岸線沿いにある、真っ白でかわいい平屋」であるが、物件があるのは九十九里浜から少し中に入った東金市内の住宅地。 今回は築浅でまだまだ真新しい、青空にキラキラ光る真っ白な平屋物件をご紹介します! 物件から漁港やサーフポイントへは車で15分ほどの距離である一方、日々の暮らしにも便利なエリアにあるため大型スーパーやホームセンター、新鮮な野菜が並ぶ道の駅や多くの飲食店が車で10分圏内に揃っています。目の前に大型店舗があったり、交通量の多い幹線道路が近くにはないので、静かな環境で落ち着いた雰囲気がとても心地良い。 この「距離感」は年月を重ねながら過ごしていくにはとても大切な要素であり、今回のご紹介物件のポイントでもあります。 では建物の中へと入っていきましょう。 インターホンの脇にはシンボルとなる植栽がお出迎え。コンパクトながら整えられた庭越しに、真っ白な海岸スタイルの建物が見えます。テラスもあるのでここに座りながら朝のカフェオレなんて、とても気持ちが良さそう。 玄関を入って扉を開くと、まず目に飛び込んでくるのは合わせて20畳を超える広々としたリビングダイニングとキッチン。室内も白が基調でキッチンのタイルやリビングのヘリンボーンのアクセントが印象的です。大きな窓によって採光も充分、とても明るい雰囲気がここがこの家の中心で家族の憩いの場であることを物語っております。 リビングの脇にはこじんまりとした書斎スペースが。リモートワークの浸透によりこういったスペースの重要性は年々高まっており、仕事や趣味の作業を集中して行いながらもすぐ隣のリビングで家族の気配を感じる、決して籠らない距離感も嬉しい間取りに。 リビングの奥には5畳ほどの2つの部屋があります。リビングを必ず通る動線となっているので、子供部屋としても安心。 またキッチン側から奥へと進むと、こちらは水回りのゾーンに。 洗面台とトイレ、そして洗濯スペースを兼ねた脱衣所に大きな浴槽の浴室が並んでいました。途中にあった扉の先には広々収納力のウォークインクローゼットと主寝室があり、寛ぎの動線と家事動線がクロスしない、良く考えられた間取りに感じます。 また玄関の隣にはコンパクトなガレージスペースがありました。自動車を入れるにはちょっと厳しいかも知れませんが、自転車やバイク、こだわりのアウトドア用品などを見せながら収納していきたい。 そしてあることに気づく。 「そういえばエアコンが見当たりませんが…??」 そう、この物件には『全館空調システム』が導入されておりました! 夏は涼しく冬は暖かい。家中どこにいても温度差がなく、ストレスフリーで快適な暮らしを実現。 さらに太陽光パネルも設置されており、環境と家計への配慮も感じられます。 趣味にもレジャーにも、日々の暮らしにも「付かず離れず」。 程よい距離感の海岸スタイルでの充実した毎日をご想像ください。 |
![]() |
|
| この物件の中心は明るく広々な、このリビング |
|
| コンパクトながらも整えられている前庭 |
|
| 物件への入り口。海岸リゾート感があります |
|
| 夜の雰囲気も素敵です |
|
|
| 価格 | 3,800万円 | 建物面積 | 124.77㎡ |
| 管理費 | なし | 修繕積立金 | なし |
| 所在地 | 千葉県東金市前之内 | ||
| 交通 |
JR東金線「求名駅」 2.3㎞(車約5分) 千葉東金道路 東金IC 9.7㎞(車約20分) |
||
| 建物構造 | 木造/ガルバニウム鋼板葺き 平屋建 | 所在階 | |
| 築年 | 2023年 | 土地権利 | 所有権 |
| 敷地面積 | 267.36㎡ | 都市計画 | 非線引き区域 |
| 用途地域 | (指定なし) | 建蔽率/容積率 | 60%/200% |
| その他費用 | 取引態様 | 媒介 | |
| 設備 | 電気(小売電気事業者)/プロパンガス/公営上水道・個別浄化槽/IHコンロ(3口)/食器洗浄機/テレビモニタ付きインターホン/全館空調システム/太陽光発電パネル(8.5kw) | ||
| 備考 | 地目:宅地/現況:居住中/引渡時期:相談/地目:宅地/現況:居住中/引渡時期:相談/間取り:3LDKS/接道:幅員5.5m、長さ15.1m(南東側)/建築基準法22条・23条による指定あり/庭付き/駐車場あり(屋外2台分) | ||
| 情報修正日時 | 2026年1月10日 | 情報更新予定日 | 2026年1月28日 |
あなたにおすすめの物件


